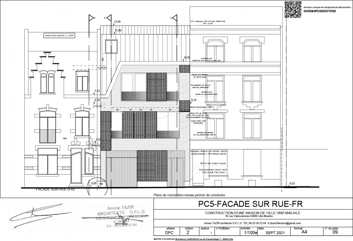
Maison à Lille-Moulins
Détails du projet
[x]
Destination:construction d'une maison de ville en secteur sauvegardé
M.O : privé
Surface : 128m2
Cout des travaux :NC
2023



