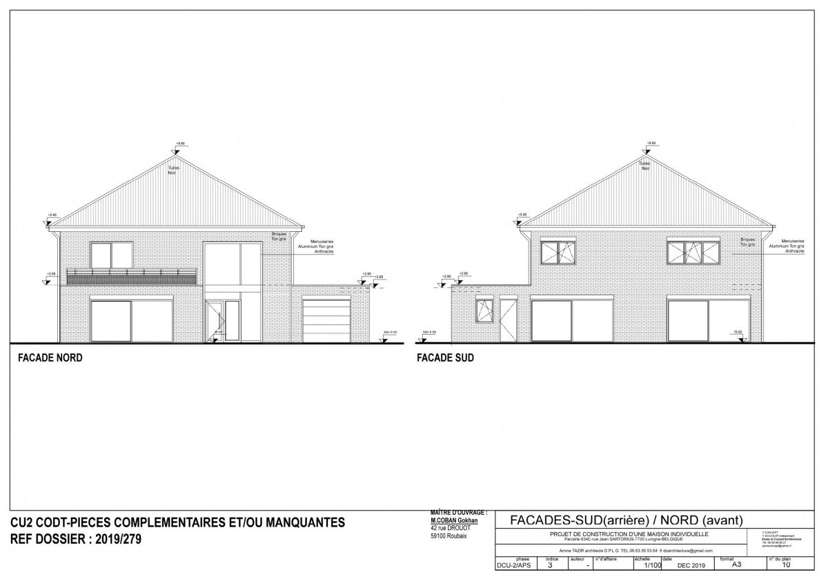
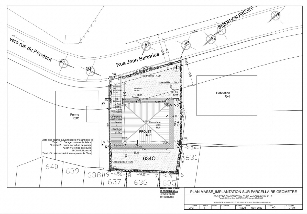
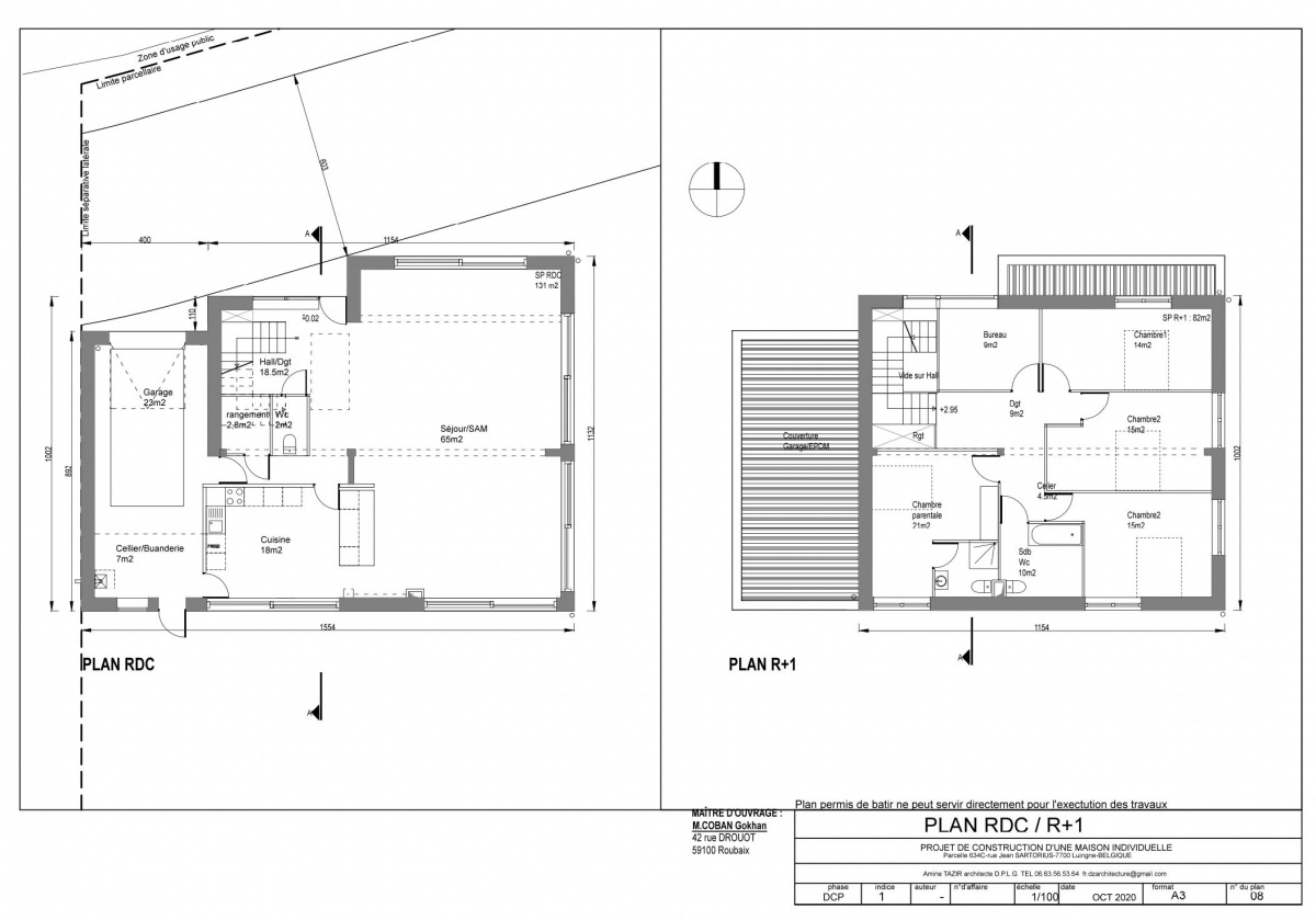
Maison individuelle ŕ Mouscron(BE)
Détails du projet
[x]
Destination:construction d'une maison individuelle
M.O : Privé
Surface : 200m2
Cout des travaux :NC
2020







